112㎡,装下满屋胡桃木与留白

空间设计出品┃转载请注明来源

来源:空间设计(ID:kongjiansheji88)

胡桃木风


每天给你分享一个案例设计

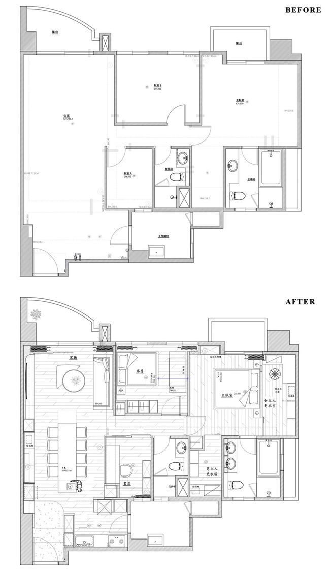
这套住宅 面积:112㎡(套内)

格局:2+12厅 2 卫

人数:2大

澐石室研所设计


玄关「一键电源」太戳人✅ 屋主远行轻按即可关闭全室灯空调(必要电源除外),省去繁琐检查,优雅又安心。



设计师调整格局,拓宽主卧并搭配玻璃隔间隔出通透书房,采光无阻碍。顺势规划茶水吧+红酒柜,串连客餐厨与中岛,回字动线流畅便捷。




利用原有梁柱,以高度差营造层次,玄关至公区天花板渐高,藏「步步高升」美好寓意。天花圆弧收边,柔和线条,打破刻板,细节尽显用心。




3.2米阔石中岛,既是备餐台,也是家人相聚的温柔角落 台面专属排水圆孔,适配屋主茶道情怀,仪式感拉满;隐藏式桌板可灵活伸缩,轻松应对家族聚会。转身即是藏茶展示架,胡桃木映衬下,茶香氤氲显人文气。







深邃胡桃木香漫全屋,藏着圆弧的柔、留白的雅,澐石室研所将对家人的温柔,融入每一寸光影,既有仪式感,又有烟火气。






这不仅是居所,更是凝聚亲情、静心品茶的世外桃源

如果可以,请进入视频,点个关注

喜欢视频就点一下“赞”


(家居责编:拓荒牛 )