空间设计出品┃转载请注明来源
来源:空间设计(ID:kongjiansheji88)
工业混合风

每天给你分享一个案例设计
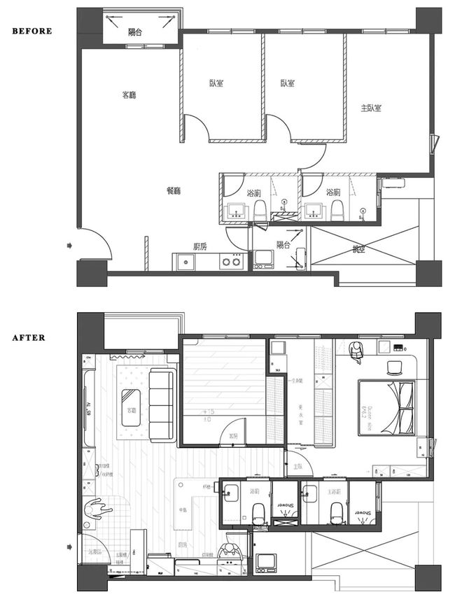
这套住宅 面积:79㎡(套内)
格局:2室2厅 2 卫
人数:2大
由落腳室內設計设计

79㎡灰蕴小窝✨
拾起半月微光
让温柔轻落每一个寻常朝暮





月色从清水模的肌理中漫出
粗粝与柔润相撞,藏着家最本真的质感
设计团队以清水模为底,用「微物叙事」
让每一道痕迹都映着日常心绪



客变3房改2房,更衣室一分为二
让渡坪效给主卧与客房
把透天宅的居住习惯,妥帖适配单层空间

公区虽小,张力拉满
玄关爱意满满的半月造型
与厨房绿墙的浅白弧面遥相呼应
错视间凑成圆满,一进一退皆是互动之美
温柔迎接每一次归巢


深与浅的碰撞,藏着两人的偏爱❤️
清水模的灰为底,深奶茶色柜体放大坪效
绿漆点缀沙发背墙
跳色层次拉满,平衡感恰到好处

主卧室以顺随屋主起居、卧眠、洗沐功能为流向
以阔面的床背墙为起点
由 L 型为包覆、紫色调为面,筑起一道避开大樑的床头柜
并延伸入侧墙的卧榻
由浅白为立面、浅木为平台,仿佛一座温柔之岛
以错落有致的包容度,串起了房内各边隅的功能
一如收储、桌面、卧榻、层架等



因为拆卸了原始一房
主卧室得有余裕
以木隔间砌造一间阔面、长廊状的更衣室
也在精算收储量能之后,形成了一列单向柜






不刻意的设计,才是生活最好的模样
灰蕴底色,微光加持,日子也变得柔软起来
如果可以,请进入视频,点个关注
喜欢视频就点一下“赞”
)