现代极简宅

每天给你分享一个案例设计
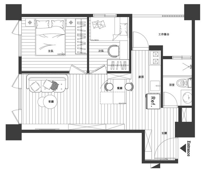
这套住宅面积:43㎡(套内)
格局:2室2厅 1 卫
人数:2大
維克設計设计

1. 玄关设计
玄关转角处采用凹凸纹理的石皮
通过材质的延展性将动线自然引入客厅
打破一般漆面单调的平整感
并配置了上下投放形式的壁灯
利用光影投射凸显石材原始的自然纹理
强化视觉层次

地板选用具备涂料质感的进口不规则磁砖
与室内地板建立清晰分界,明确划分出入动线
柜体采用轻盈视觉感的不落地设计
有效减轻小坪数的压迫感

电箱采用侧滑开的修饰手法
平时能完美隐藏于立面之中
维持墙面美感的完整性
电箱盖与相邻的石皮墙面及莫兰迪绿端景相互衔接
将功能构件转化为玄关艺术端景的一环

2. 客厅设计
天花板尽可能挑高
并将冷气室内机隐藏在中岛上方天花班
扩大视觉感受,利用木百叶可调整叶片倾角的特性
创造出比一般拉帘更丰富多样的角度折射,烘托日常氛围

电视墙抹上灰韵特殊涂料
舍弃传统的落地或悬空电视柜
将收纳功能集中于左侧的直立式灰玻展示柜
有效释放地面空间,配置间接灯源
柔化墙面稜角并营造温润的居家感

将混乱的电器线材隐藏于背板后方
确保立面干净俐落
墙面采用与沙发背墙一致的特殊涂料
运用细腻纹理与灰色调建立整体的视觉延伸感



设计师将主卧与客卧门巧妙消隐于墙体内
建构出完整立面,透过材质与色调的高度协调
使公私领域切换点转化为客厅的大型艺术端景
维持都会居家所需的纯淨与大器

3. 餐厨设计
设计师规划了可 90 度旋转的 L 型桌面
平时可收合与中岛贴齐维持动线流畅
聚会时则能旋转延伸,作为餐桌或谈心空间使用


中岛上方配置专属餐吊灯
当其yu灯光关闭时,能聚焦视觉中心
营造温馨的居家氛围

侧边规划了小家电与生活用品的收纳区
邻近冰箱处则设置了一道1.6mm
极细铝框长虹玻璃屏风
在不遮挡採光的前提下
有效遮蔽冰箱背部的散热空间


4. 主卧设计
床头设计了带有细腻纹理的背板
并稍微垫出一个小平台
上方配有灯带烘托睡卧情境,营造舒缓气息

床头背板衔接到床侧的一整面衣柜
gui门采用无把手设计
降低视觉分割感与压迫感之余
也维持平整的立面视觉


5. 次卧设计
次卧整合了更衣间、化妆桌与客房功能
在有限面积内规划出完备的生活机能
设计师特别考量使用便利性
于化妆桌抽屉后方预留插座
让吹风机可收納于抽屉内直接使用,无需重复插拔

设计师加入弧形格柵
利用半圆形的线条感柔化转角稜角
并流畅通接邻近的餐边柜

6. 卫浴设计
卫浴以干湿分离
有效阻擋淋浴时的水花濺散
避免水气蔓延,使乾区保持干爽


全室大量运用2700K的色温,营造温暖且具放鬆感的居家氛围
)