
在北京这样寸土寸金的城市,家的形态往往因现实条件而充满挑战,尤其对于多代同堂的家庭来说,如何在有限的面积内,既保障每个家庭成员的独立与隐私,又维系家人间紧密的情感联结,是摆在首位的装修难题。
今天的屋主即将迎来新生命,需要将一套95㎡的老旧小区两居室,改造为能舒适容纳三代人的新家。面对一楼采光差、面宽窄、进深长达13.5米的“一线天”户型结构,设计团队没有选择大拆大改,而是以一道精妙的「45度斜切墙」为核心,展开了一场关于光线、尺度与亲情的空间叙事,最终成功“偷”出了三间卧室,实现了通透、明亮且功能完备的居住理想。


这套房子是北京许多老小区中典型的“窄长条”格局,旨在提升室内保温性能,却也带来了采光和通透性的先天不足。


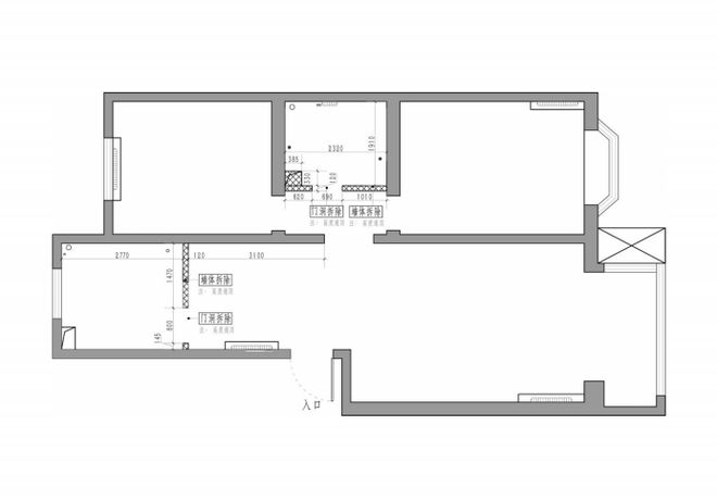
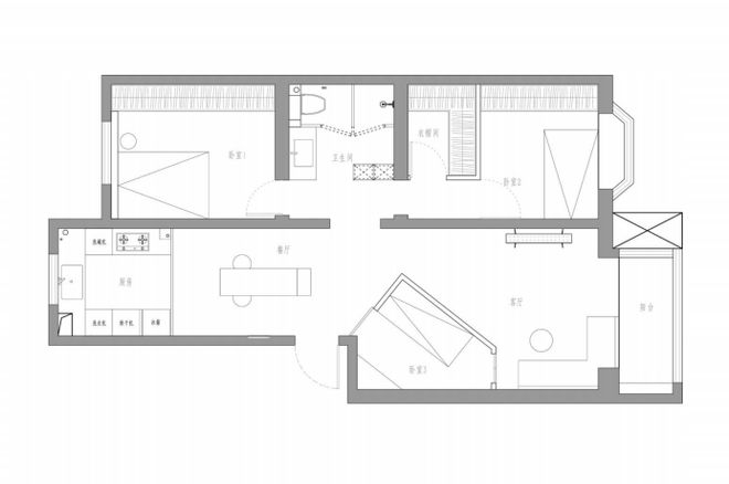
改造前后户型图对比
南侧的餐厨区域面宽仅2.4米,北侧客厅面宽3.6米,而整屋进深却达到了惊人的13.5米。再加上位于一楼,本已受限的采光雪上加霜,整个空间显得昏暗而冗长。


屋主的需求非常清晰:
·为即将出生的孩子增加一间独立的儿童房;
·必须保持公共区域,尤其是客厅的开阔感;
·要保证全屋的通风与通透性;
·新增一个衣帽间,以解决收纳问题。
在如此窄长的客厅里硬隔出一间房,势必会切断光线与视线,让空间“越隔越暗、越隔越堵”。设计的转折点源于一个简单的动作:主案设计师在图纸上,将代表儿童房的小方块轻轻旋转了45度。

轴测图


渲染图
这个斜向植入客厅的“儿童房盒子”,带来了多重效果:
1. 视觉放大:斜向墙体自然形成了两个“喇叭口”视角,有效打破了狭长矩形空间带来的逼仄感,引导视线向对角线方向延伸,创造出视觉纵深感。
2. 光线引导:斜角布局如同一个光线的折射器,将南向可能进入的阳光更有效地传至客厅深处,缓解了长进深带来的昏暗。
3. 空间高效:相比于生硬的直角隔墙,斜角在减少对客厅面积直接侵占的同时,于儿童房内部形成了更富趣味的三角区域,并且确保了房间内部最宽处达2.46米,足以放下儿童树屋与休息角,过道也保持在90公分以上的舒适宽度。
4. 动线活化:儿童房设置移门与“小拱洞”双入口,不仅增强了通风,更创造了灵活、好玩的环形动线,让空间流动起来。


改造后的客厅,成为了这个准三代之家的精神核心与互动枢纽。斜插入其中的儿童房,是当之无愧的空间主角与设计灵魂。

儿童房的外立面墙体由上下两种材质砌成:上半部分采用玻璃砖,通透而朦胧,允许光线自由穿透,继续向客厅深处漫游;下半部分面向南向迎光面,选用小蓝砖,表面质感如同清澈湖水,能柔和地散射光线,提升局部亮度,在阳光下呈现波光粼粼的视觉效果。两种材质的结合,既保障了儿童房的私密性,又恰到好处地引入了自然光。


儿童房内部,树屋上下铺的设计充满了想象力,不仅满足了孩子攀爬玩耍的天性,也为未来大人陪睡或二娃预留了灵活性。角落里的三角卡座,被规划为妈妈讲睡前故事的温馨角落,将空间利用与情感场景完美结合。


在细节处理上,移门边缘和斜切转角均打磨成圆弧形,避免阳角可能带来的磕碰风险。

双入口设计让这个房间活了起来,孩子可以在此玩捉迷藏,更重要的是形成了有效的空气对流通道,极大地改善了房间内部的通风。

旋转后的墙体创造出一个“喇叭口”,让原本局促的客厅有了纵深感。

为了进一步强化空间的通透感,设计师选择了悬浮式的细窄书柜和量身定制的卡座沙发。沙发与阳台地台采用一体化定制,精准卡住阳台垭口做成 L 型,其尺寸经过精心计算,比常规沙发节省约20%的空间。阳台抬升做地台,也成了瑜伽、阅读、陪玩三合一区。

沙发的尺度也不影响儿童房拱门的开合,即便是大人出来也不会拥挤。沙发底部留空,用于放置收纳筐,方便玩具随拿随收,保持了客厅的整洁。

沙发对面的墙面,设计了长达3.4米的超纤薄悬挑式书架,内预埋加固钢板以保证承重,视觉上极为轻盈。


整个客厅地面铺设浅色莱姆石,并以小尺寸拼贴方式增强空间的延伸感。客厅真正成为了三代人可以舒适共处、放松身心的最佳场所。


北侧的餐厨区是本次改造的另一大难点。仅2.45米的面宽,让传统的平行布局完全失效。设计团队给出的解决方案同样巧妙而务实——定制一张2米长、65公分宽的窄岛台。

岛台成为小空间里的多功能核心,同时作为餐桌、备餐台和收纳柜。当有人坐下就餐时,背后的过道仍保留有足够一人通行的宽度。岛台一侧紧邻改造后的厨房入口,实现了“炒菜转身即上桌”的高效动线。

厨房采用隔断式水波纹金属复古门,关闭时仍能透光,不仅可以作为装饰,更能将厨房的灯光柔和地引入北侧暗厅,让餐区焕发生机。内部是使用效率极高的 U 型布局,从左至右依次为电器区、洗菜区和烹饪区。


除了成功打造宽敞明亮的公共区域和趣味儿童房,设计团队对私密空间的处理同样细致入微。主卧在门口巧妙地隔出了一个独立衣帽间,遵循“杂物能放外,绝不进卧室”的原则,保持睡眠区的纯净。

床尾还定制了金属架衣柜,功能堪比第二间步入式衣帽间,内部甚至隐藏了一个办公区,用帘子一拉便可隐匿,确保主卧空间随时能够回归干净、松弛的状态。

北向卧室作为老人房,设计简洁而充满关怀。靠窗处加厚床头做成半墙,作为老人起夜时的安全扶手,上方叠加一层红色金属支架,兼具床头置物功能。整面墙的衣柜满足了收纳需求,营造出一个安静、安稳的休憩环境。


作为全屋最暗的角落,原卫生间实现了完美变身。设计师将原厨房内的洗衣区巧妙移出,安置在客厅上下水方便的位置,从而解放了宝贵的卫生间面积;拆除原先封闭的“混卫”,在走廊设置了朝上照明的线灯,以改善昏暗环境。

改造后的浴室分成了内外区,重组为高效的四角动线。外区左侧为悬浮式洗手台,右侧是一面造型如屏风的隔断柜,朝向淋浴房开门,方便存取沐浴用品。

内部分为左侧马桶间与右侧淋浴房。整体以清爽的蓝色为基调,局部用红色点缀,提亮空间。
一处45度斜切的墙,不仅是物理空间的巧妙划分,也是用灵活破解局促、用巧思置换面积的创新设计。这个案例让我们看到:家的温暖,或许不在于面积的大小,而在于空间中流淌的关怀。而真正的三代同堂理想居所,是通过精心设计,让长辈的安稳、父母的陪伴、孩子的欢笑,都能在同一片屋檐下和谐共生。
编辑|Kiki
文字|诺威尔卡
设计与图片来源|七巧天工室内设计

)