空间设计出品┃转载请注明来源
来源:空间设计(ID:kongjiansheji88)
现代轻奢风

每天给你分享一个案例设计
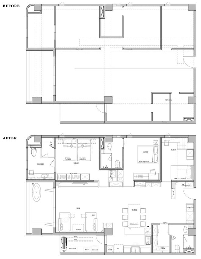
这套住宅 面积:139㎡(套内)
格局:3室2厅 2 卫
人数:3大
由寬向設計设计

1. 玄关设计
玄关与公区以地坪深浅作出对比
并配置鞋柜、电子衣橱等基础收纳
也运用具有穿透感的长虹玻璃为轻隔屏
设置展示柜供屋主陈列收藏的瓷器

2. 客厅设计
客厅主墙选用水纹材质铺陈,搭配镀钛饰条
在自然纹理中隐约透出细腻光泽
奠定了大器而沉稳的基调
天花板以弧线收边延伸视觉
软化了稜角,蕴生放松舒缓的情境

设计师将原本通往阳台的推拉窗改折叠门
并在确认给水与排水无虞后,铺设防潮户外型木地板
置入独立浴缸,安装电动卷帘,营造惬意度假情境





3. 餐厨设计
客餐厅採连贯式布局
透过一道温润的木皮墙面对界线
界定出场域的转换,弧形天花垂挂一盏圆形吊灯
柔和回应了空间中「海浪律动」的设计空间


廚具与中島台面以深色赛丽石衔接
并导入IH智能炉、T型抽油烟机与红酒柜
有度假仪式感,也兼顾使用上的便利性

4. 主卧+主浴设计
由宁静的蓝展开主卧定调
也将封闭墙面改为止透玻璃
让晨曦能自然渗透,让周末醒来的瞬间
不仅是视觉上的开阔
更是一种与生活节奏共筑的优雅仪式感



主浴以带有石纹的磁砖铺陈
化妆台与洗手台、浴柜衔接在一起
让整体线条保持俐落感



5. 次卧一设计
温和奶茶色铺叙次卧女儿房
散发淡雅柔和气质
配置基础收纳衣柜与能展示包包、配件的玻璃柜
并以圆弧搭配灯条的方式
弱化尖锐转角处,增添圆润感


6. 次卧二设计
这间次卧当作客房
以上下舖型式规划
在通往上舖的梯身侧边立面以镂空圆弧呈现
增加通透感与趣味性
下舖床头则以橙色作为跳色点缀


如果可以,请进入视频,点个关注
喜欢视频就点一下“赞”
)