

当下,“退休”脱离“养老”的单一标签,越来越多人在子女成家后,选择回归二人世界,以「悦己」为核心重构生活空间,使其适配自己的兴趣爱好与生活习惯。
在北京,一对退休多年的夫妇便用240㎡的复式老房,完成了一场关于“再养自己一遍”的生活实践。这次改造不仅解决了老房的采光、收纳等诸多痛点,更凭借每一扇窗框住的四季景致、法式复古的精致格调与从容自在的生活氛围,成为令人向往的退休生活范本。
这套复式住宅最大的遗憾,在于为增加使用面积,在挑空区域加建了二楼书房和榻榻米和室,这一决定让空间付出了沉重代价:一楼客厅被压缩得压抑憋屈,二楼走廊昏暗狭窄,整屋的采光与通风被这道钢结构楼板生生切断,让居住体验大打折扣。
改造前、后对比
不过,原户型的潜力同样突出,三面采光的优势,搭配自带的环绕式窗景,为后续改造提供了良好基础。基于对生活的热爱与对空间的期待,屋主提出了明确而具体的需求:
1、只保留两间卧室,契合二人世界的居住节奏;
2、玄关需要系统的收纳解决方案,解决进出物品无处安放的问题;
3、主卧的隔音与遮光需彻底改善,保障优质睡眠;
4、卫生间要实现干湿分离并容纳小浴缸,满足舒适卫浴需求;
5、充分利用家中多窗的优势,让自然景致与光线融入日常生活;
6、屋主念旧,希望保留承载情感记忆的老家具,同时追求品质,愿意为地暖、中央空调、全屋净水等舒适系统投入。


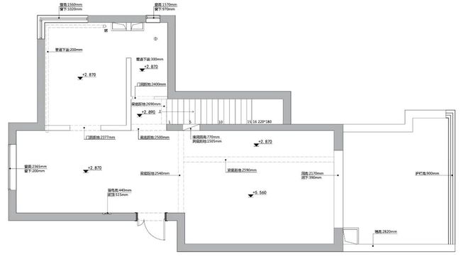
一层户型图(改造前后对比)


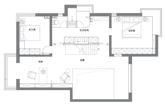
二层户型图(改造前后对比)
设计师里白以「空间的减法」为核心,展开了一系列精准拆改:敲掉二楼中心书房,释放客厅挑空结构,恢复空间的通透感;在一楼入户新增玄关,两侧定制柜体,拓展入户收纳能力;封起阳光房,增加实用室内面积;二楼调整主卧门洞位置,换来了整墙通顶大衣柜,提升储物容量;除此之外,合并两个零散卫生间,整合为超过10㎡的双入口洄游、三分离卫浴套间,在无障碍设计中实现酒店级的舒适体验。


南向客厅是本次改造的核心亮点之一。拆掉二楼加建的书房后,挑空结构被完整释放,客厅得以拥有南向二楼落地窗和一楼阳光房带来的充沛自然采光,光线毫无阻碍地涌入室内,让整个空间显得开阔明亮,彻底摆脱了此前的压抑感。


二楼的护栏扶手呼应整屋法式复古格调,采用柚木搭配黑色铁艺栏杆,勾勒出精致的法式骨架,同时顶部悬挂极具仪式感的大型主灯,不仅成为空间的视觉焦点,更巧妙串联起上下两层空间,强化了整体的纵向联系,也让一楼与二楼的互动更为紧密,阿姨平时在二楼时,可随时透过挑空区域与一楼的叔叔交流,让二人世界的陪伴不被空间阻隔。


扩大挑空后,一楼也为更大的沙发背景墙释放出空间。改造团队用石膏板和PU线打造出造型墙,左右对称布局的壁灯与主灯搭配,既提升了客厅的气场,又丰富了夜晚的光线层次,让空间在不同时段都能呈现出舒适的氛围。沙发左侧角落增设了一组黑色柜子,用来摆放叔叔阿姨旅行带回的摆件、挂画以及古董灯,增添浓厚的艺术氛围与生活气息。


另一侧的电视墙设计则兼顾了美观与实用,墙体中间做了加厚处理,提前预埋好电视线管,同时为两侧的嵌入式书柜预留出合适的安装空间。
整面柜体采用分段式设计,下部选用木色,上部搭配白色,既降低了视觉重心,也让整个空间更显沉稳大气。柜体下半部分的封闭柜门,能够将常用的零散物品妥善遮挡,避免杂乱外露,让家始终保持整洁有序;而开放格区域,除了用来陈列夫妇二人收藏的旅行纪念品与艺术藏品,更核心的功能是收纳并展示他们日常常读的书籍。

在增加玄关柜的同时,设计师还在其背后为客厅多做了一组书架,既能实现书籍的就近收纳,方便随手取用,又能以开放式陈列的方式呈现,无形中吸引家人更愿意在此区域停留、静坐,促进彼此间的交流互动。

与客厅相邻的阳光房,重点提升了保温性能,设计团队在两个空间之间设置了铁艺门和拉帘,平时保持敞开状态,让它们通透相连,拓展活动范围;到了冬天夜晚,可拉上门和帘子,为客厅的暖气保温,有效解决了阳光房“冬冷夏热”的传统痛点。

改造后的阳光房在功能上更为复合与丰富,成为屋主养花、做瑜伽、晒太阳、洗衣晾晒与集中储物的全能空间。顶部采用高质量电动开启窗,搭配中央空调系统,确保这里四季温度宜人、通风透气,即便阳光强烈照射,房间也不会闷热。


阳光房内的沙发是屋主保留下来的旧物,承载情感记忆的老家具得以继续发挥作用。

这里还专门规划了洗烘区,满足了长辈洗完衣物后仍希望晾晒一番的需求,除此之外,一面功能完备的“家政墙”,配备灵活可调的货架系统,搭配折叠式滑轨门,既不占用多余活动空间,又能让屋主随心收纳行李箱等大件物品,补足了全屋的储物空间。
阳光房还单独布局了上下水,安装了大单槽,方便阿姨养花时浇水、打理,也便于随手进行家政清洁,让每一项日常活动都能在舒适的环境中完成。


餐厅位于房屋北侧,南北通透的格局让这里空气流通顺畅,同时北边的窗景也十分优越,为这里带来四季流转的视觉浪漫。

考虑到餐厅面宽有限,设计团队选用了小巧的洞石餐桌,尺度合宜,与全屋法式复古的氛围协调。对称安装的壁灯与挂画遵循对称美学,赋予空间稳定的秩序感,让餐厅真正成为凝聚家人情感、承载日常用餐仪式感的核心生活区域。
当夜幕降临,光线柔和地向下倾泻,将餐桌区域完整包裹,用餐体验升级为温柔又沉静的相伴时光;弧形穹顶中的暗藏灯带也是一大亮点,顺着墙面向上形成细腻的洗墙效果,补足空间的整体照度,烘托出温馨的用餐氛围。

餐厅未定制满墙餐柜,而是配置了尺度克制的成品餐边柜,用来陈列屋主珍藏的茶具,收纳茶叶、零食等物品,转身即可取用,恰到好处地满足了用餐前后的使用需求。

设计团队以“窗景优先” 的原则,对厨房进行了重新规划布局,还原贴合日常操作的舒适尺度。厨房入口处采用通透的玻璃双开门设计,不仅让空间格调更显雅致,门框精致的线条与协调的比例,更给下厨这件事增添了一份隆重的仪式感。
为了让屋主在洗菜、备餐的过程中也能尽享窗外景致,设计师把水槽规划在窗边位置,并选用巴士移门式平移窗,解决了普通窗户开启时易与水龙头发生碰撞的问题。改造后的厨房采用大U型操作布局,能够同时容纳两人协作操作,营造出开窗、洗菜与赏景同步进行的惬意体验。

考虑到屋主的年龄,避免弯腰操作的不便,洗碗机被特意抬高,同时所有电器均采用嵌入式安装,蒸烤箱、冰箱与柜体严丝合缝,连燃气热水器也被藏于柜内,有效减少了多余的家务清洁工作。


位于客餐厨三区交汇处的玄关,地面采用了与其他区域不同的黑色莱姆石,既清晰界定了空间,又承担了落尘区的功能,更方便清洁打理。设计师在这里打造了一个过道型玄关系统:入户左右两侧新建了两组长1300mm、深670mm的储物模块,进行精细分区收纳。左手边为综合储物区,用来挂置长衣外套、收纳杂物、隐藏电表箱,右手边则是书柜+鞋柜为一体的双面柜,分区合理、实用,大大提升了生活的便捷性。


由于一层与二层存在巧妙的错层关系,原有楼梯的位置与结构被保留下来,顺应日常生活的最优动线。


楼梯选用温润质感的实木踏步搭配稳固扶手,二楼走廊增设了高度适配长辈行动的安全围栏。从起步、转角到抵达二楼,连续且可靠的支撑,让叔叔阿姨每一步都有借力之处,上下楼时更为从容稳妥。楼梯上方吊顶采用透光性佳的软膜天花,模拟出柔和均匀的自然光线,如清晨曦光般轻柔漫落,既消除了楼梯间的昏暗死角,又规避了强光直射的刺眼不适感,让屋主始终行走在温润光晕中。


为了改善整层的通风与采光,二楼原始结构中占据C位的中心书房被果断拆除,这里的书籍也被“化整为零”,分散到3个核心点位,形成了一个以走廊为枢纽的「家庭图书馆」,赋予空间灵活、随性的阅读功能。

由原来的和室改造而成的半开放书房,配置了玻璃门书柜,用来收藏经典书籍,搭配单人沙发,营造出沉浸式的阅读体验,让屋主可以在此静下心来享受阅读时光。


与一楼联系较为密切的过道阅读区,不仅可以一览楼下的起居活动,增强家人间的互动与联系,也能在二楼南向平台阳光过强时,作为阅读赏景两不误的补充阅读空间存在。
最佳窗景+充足阳光,让主卧前的小走廊摇身一变成为隐秘阅读区。这里也是阿姨的瑜伽角。一人读书,一人瑜伽,日常情感交流更为频繁,空间的使用效率得到显著提升。


二楼主卧以「舒适套间」为核心概念,完成了一场彻底的改造。两个卫生间合二为一,主卧入口位置从二楼瑜伽区改至卫生间一侧,形成酒店式套间格局,提升空间的私密性与舒适度。

主卧户型改造示意


原门洞被封起来、改造成柚木壁龛,用来放置阿姨的瑜伽运动装备;背面原本位于床尾的门洞也被封上,打造满墙通顶大衣柜,同时有效隔绝走廊噪音,提升了卧室的静谧性。所有柜门采用同一款烤漆,避免出现不同色调的白色,让空间在视觉上更为协调。


考虑到阿姨阿姨睡眠较浅,设计团队特意将床头左侧的小窗做了封闭处理,从源头隔绝了夜间路灯、晨光等多余光线的渗透,最大程度降低了光影对睡眠的干扰,为其营造了静谧、优质的睡眠环境。

而床的另一侧则保留了实用与观景兼具的L型飘窗台,让屋主无论是清晨起床后伴着鸟鸣稍作静坐,还是夜晚入睡前沉淀一日心绪,都能从容惬意。

女儿房承载着父母对女儿的牵挂与关爱,虽然不常使用,但在设计上仍然很是考究。常穿衣物挂放区与存放叠放衣物的抽屉,让收纳顺手省力,满足短期居住的储物需求;衣柜侧壁做了开放格,专门用来摆放女儿的照片和旧时喜爱的物品,留存满满的回忆与温情。


女儿房位于安静角落,床上视角拥有良好窗景。门外即是功能完备的三分离卫浴,动线设计让归家的女儿倍感便利。


将两个功能重叠的卫生间合并,打造出超过10㎡的三分离套间,同时,两个入口的设计构成流畅的洄游动线,大幅度提升卫浴体验。
柚木柜搭配宝格丽大理石台面,古典风格的盥洗区极具质感,双台盆设计满足了叔叔阿姨同时洗漱的需求,避免了早晚使用高峰的拥挤;巨大的抽屉让各类洗漱用品一目了然,取用方便,无需堆积在台面上,保持了空间整洁;盥洗台侧面还安装了黄铜毛巾架,细节之处尽显精致。


换衣区的设计兼顾实用性与便捷性,淋浴泡澡间与马桶间彻底分离,中间预留了浴巾、浴衣的挂放区,卫浴动线更为顺畅。
淋浴泡澡间内,不仅放置了屋主心心念念的“能坐着泡澡”的小浴缸,还在窗下设置了可坐的平台,既避免了长时间站立带来的腿部酸胀与疲惫,更降低了滑倒、磕碰的安全隐患。

独立马桶间净宽达1.2米,屋主转身、起坐都能舒展自如,丝毫没有局促之感。墙面设置了开放层板,可放置手机、卷纸等物品,必要时也能充当扶手;保留的窗户既保证了通风,也为如厕时增添了自然景观,丰富了屋主的使用体验。

一层客卫户型图
客卫门洞处理成层层递进的拱门样式,既增加了入户第一眼的美感与仪式感,又让空间过渡更为自然。
通往客卫的过道过渡区在功能上暗藏玄机,全屋的水处理设备、扫拖机器人都被巧妙隐藏于此,保持外观整洁好看,也便于后期更换耗材与定期维修。


客卫空间设计延续了整屋的法式复古风格,兼具美观与实用,成为一楼不可或缺的便捷空间。
拆掉不必要的建筑结构与空间隔阂,换来的是光、空气与情感的自由流动;舍弃的是冗余的功能分区,得到的是适配屋主生活习惯的舒适体验。在这处改造案例中,没有刻意的适老设计,却在楼梯的扶手、卫生间的坐台、抬高的洗碗机等每一处细节里,藏着对长者的尊重与关怀;没有盲从当下的潮流趋势,却用法式复古的格调、老家具与新系统的融合、光与景的充分引入,抵达“悦己”与“自在”的生活本质。
编辑|Kiki
文字|诺威尔卡
设计与图片来源|里白空间设计

)