空间设计出品┃转载请注明来源
来源:空间设计(ID:kongjiansheji88)
侘寂寧靜风

每天给你分享一个案例设计
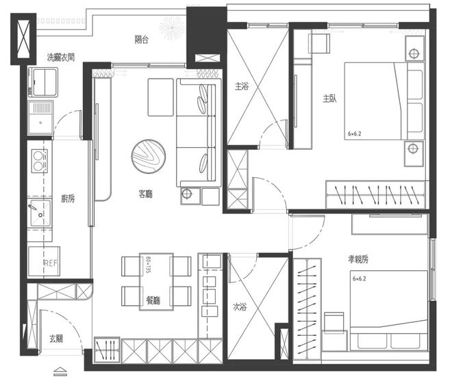
这套住宅 面积:79㎡(套内)
格局:2室2厅 2卫
人数:2大
由思維室內裝修設計工作室设计

1. 玄关设计
玄关柜体置入一面穿衣境
创造宽阔的迎宾感
柜体正面中间留有一处平台
圆弧收边的巧思带来圆润感
另也设置穿鞋椅让妈妈方便使用


玄关牆面的特殊涂料
以温润质地一路向客厅延伸
铺陈出沉稳宁静的氛围,而脚下的花砖
也巧妙承接了低饱和色调的驼色系
展开内敛的侘寂风格


2. 客厅设计
客厅以灰阶地板为基底
佐以温润木纹与陶质漆面,消融了空间的冷冽
取而代之的是一股深邃的静谧
一如侘寂美学中蕴含的「不完美」与「岁月痕迹」
方能成就最动人的姿态


主牆涂上细腻肌理的大地色涂料
并创造出饶富深浅韵致的色彩层次
同时也延续了玄关的圆弧空间
让视觉动线更流畅优雅

沙发背牆以留白呈现
反而为空间带来一抹清淨与呼吸感
沙发为屋主亲自挑选
过程中也细心徵询了设计师的意见
最终确定了与空间主调和谐一致的灰色调
营造出安稳的休憩角落

在沙发一隅,一盏陶瓷吊灯悬落而下
它不只是视觉上的点缀
更兼具了辅助阅读灯的实用功能
邻侧的小边几则能配合生活轨迹
与保持活动家具的弹性,提供最贴心的陪伴

3. 餐厨设计
餐厅与客厅延展成一面完整的开放场所
并设有能收放小家电的餐边柜
补足厨房的收纳不足
让咖啡机、烤箱、热水瓶等
能有秩序的归放
餐柜侧则隐藏了集尘扫地机的位置

厨房位于电视牆后方
以一道轻巧的小冰柱玻璃拉门为隔屏
轻柔分界、不显厚重
门可以整个俐落的藏到电视牆后面
拉门设定为 110 公分,宽敞尺度更方便进出



4. 主卧设计
主卧与公区的深色木皮基调
增添一份沉静底蕴
为了满足提袋、帆布袋与饰品的收藏热忱
入门一侧先行配置高柜
以便大量吊挂配件,保持房间整洁
床头木质背板嵌入灯条,泛起柔和光晕



床尾端设置一字形电视柜
柜体下方轻绽温和光氛
并利用临窗边自然光线较好的条件
将梳妆台自电视柜延伸结合

5. 次卧设计
床头设计成结合绷皮的门,掀开后可存放物品
拓增储物机能,床靠牆边放后馀留的一侧走道
作成梳妆台与衣柜,充分利用坪效
在床尾处设置一座多功能斗柜
配置了大小抽屉,大抽屉妥贴收纳折叠衣物
小抽屉则承接日常的保养品与珍爱小物



如果可以,请进入视频,点个关注
喜欢视频就点一下“赞
)