一家四口的264㎡理想自建宅,高级感满满的

拓荒号:拓荒牛 (企业头条)

空间设计出品┃转载请注明来源

来源:空间设计(ID:kongjiansheji88)

美式轻奢风


每天给你分享一个案例设计

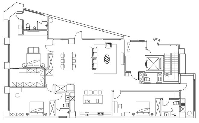
这套住宅 面积:264㎡(套内)

格局:32厅 4卫

人数:2大 2小

Order 歐德家具連鎖事業设计


1. 玄关设计:
玄关落在电视墙后方

也是通往另一端私领域的起点

因为一入门与走廊相接,为使出入口保有简静

刻意减少柜体,仅利用门边左侧

打造直接与天花相衔的高柜

作为鞋履、衣物储放之处


从入口右转,会转入宽阔的公区

为使内外有别,延展了电视墙

筑起一道小短墙,引用微幅的深度

构成浅台与抽屉柜,作为放置随手物品区



2. 客厅设计:
这是屋主在感受客厅各式石纹的美感后

发现特别钟爱大板砖的肌理

挑选了沉敛质地,并赋予全室唯美的艺术气息



电视柜选用落地式黑白相间的下机柜

以几乎主墙的宽幅

烘托客餐厅、厨房三域的磅礡气势

再揽入落地窗筛落的自然天光

使得公领域在容纳了各隅细节

再选入现代风格家具,便有了细腻的美感


3. 餐厅设计:
餐厅稍微受限于边幅的廓型

导致采光较显不足,又落在大樑下方

巧用天花版修饰圆弧,穿引间接灯光

藉由崁灯、投射灯、线性灯带的错落

使光氛层次分明,创造出恰如其分的舒柔



餐桌后方的高柜

直接浅白基调 + 嵌入墙面内凹区

完美藏住畸零空间

带多道线纹的抽屉柜

也靠柜门收折复杂线条

秒变简洁立面

石纹的自然肌理彻底突出

高级感狠狠拿捏!




4. 厨房设计:
厨房砌了一座大中岛

藏入各式管线、吊隐式空调、除湿等设备

为了修饰低天花版,除了引入聚光灯具

也透过阶楼梯状的造型,盼望转化目光的聚焦处


考量开放式厨房可能有油烟漫入的疑虑

不仅选用强吸力的设备

在周侧的墙面,均铺设便于清洁的大板砖

降低污渍发生的可能




5. 主卧室、更衣室设计:

主卧作三分区设计

把更衣室、主浴挪到对侧

完美适配男女主人不同作息

再也不怕互相打扰啦


区别于公区的温润质感

这里直接拿捏轻美式氛围

柔质绷布床背墙 + 奶油色线板

温柔又治愈,躺平幸福感爆棚



轻砌一扇格子造型的美式拉门

作为走进更衣室的入口

为满足重视质感的女主人

将衣橱每道门,一改为精美的陶烤门板

以对称平衡的线条,展现收储柜的时尚美


6. 主浴设计:
为增加浴室的便利性

刻意将洗手槽往外挪

将不受到另一人使用的干拢



7. 哥哥房设计:
因为哥哥房正位于一道大樑横生之际

造成下降 40 公分的落差,为消弥视野感受的矮窄

特意利用轨道灯修樑,亦藉由一抹特殊涂料

与层次感十足的床背墙,让目光可聚焦在壁面


全屋以低敛、深木纹为底调

因为哥哥喜爱组装机械车模型

在床侧边,打造一座深度 40 公分的展示柜

不仅可摆置超大模型

也可藏入阅读书籍,让所需功能一一到位


8. 客浴设计:
因地壁均已铺设有亮面、冷灰系磁砖

延伸些许哥哥卧房的质感,形成蓝灰面的下浴柜

并砌为干湿分离,成为方便好用的浴室


9. 妹妹房设计:
在床侧有一道偌大柱体,以浅弧修润直角

再悬下一盏可自如伸缩的吊灯

使屋内显得格外柔和,并以美式线板勾勒柜面

也在进入浴室之前,筑起开放柜,可放置洗漱用品



10. 次浴设计:
同样以干湿分离划分次浴

亦因拥有对外窗,对流的空气可减缓潮湿

在粉柔色调的下浴柜点缀之下

妹妹独拥的次浴尽显柔和可爱


如果可以,请进入视频,点个关注

喜欢视频就点一下“赞


(家居责编:拓荒牛 )