空间设计出品┃转载请注明来源
来源:空间设计(ID:kongjiansheji88)
美式轻奢风

每天给你分享一个案例设计
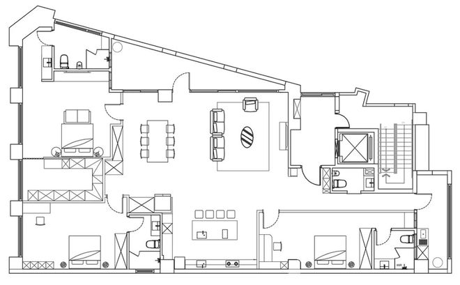
这套住宅 面积:264㎡(套内)
格局:3室2厅 4卫
人数:2大 2小
由Order 歐德家具連鎖事業设计

1. 玄关设计:
玄关落在电视墙后方
也是通往另一端私领域的起点
因为一入门与走廊相接,为使出入口保有简静
刻意减少柜体,仅利用门边左侧
打造直接与天花相衔的高柜
作为鞋履、衣物储放之处

从入口右转,会转入宽阔的公区
为使内外有别,延展了电视墙
筑起一道小短墙,引用微幅的深度
构成浅台与抽屉柜,作为放置随手物品区


2. 客厅设计:
这是屋主在感受客厅各式石纹的美感后
发现特别钟爱大板砖的肌理
挑选了沉敛质地,并赋予全室唯美的艺术气息


电视柜选用落地式黑白相间的下机柜
以几乎主墙的宽幅
烘托客餐厅、厨房三域的磅礡气势
再揽入落地窗筛落的自然天光
使得公领域在容纳了各隅细节
再选入现代风格家具,便有了细腻的美感

3. 餐厅设计:
餐厅稍微受限于边幅的廓型
导致采光较显不足,又落在大樑下方
巧用天花版修饰圆弧,穿引间接灯光
藉由崁灯、投射灯、线性灯带的错落
使光氛层次分明,创造出恰如其分的舒柔


餐桌后方的高柜
直接浅白基调 + 嵌入墙面内凹区
完美藏住畸零空间
带多道线纹的抽屉柜
也靠柜门收折复杂线条
秒变简洁立面
石纹的自然肌理彻底突出
高级感狠狠拿捏!



4. 厨房设计:
厨房砌了一座大中岛
藏入各式管线、吊隐式空调、除湿等设备
为了修饰低天花版,除了引入聚光灯具
也透过阶楼梯状的造型,盼望转化目光的聚焦处

考量开放式厨房可能有油烟漫入的疑虑
不仅选用强吸力的设备
在周侧的墙面,均铺设便于清洁的大板砖
降低污渍发生的可能



5. 主卧室、更衣室设计:
主卧作三分区设计
把更衣室、主浴挪到对侧
完美适配男女主人不同作息
再也不怕互相打扰啦

区别于公区的温润质感
这里直接拿捏轻美式氛围
柔质绷布床背墙 + 奶油色线板
温柔又治愈,躺平幸福感爆棚



轻砌一扇格子造型的美式拉门
作为走进更衣室的入口
为满足重视质感的女主人
将衣橱每道门,一改为精美的陶烤门板
以对称平衡的线条,展现收储柜的时尚美

6. 主浴设计:
为增加浴室的便利性
刻意将洗手槽往外挪
将不受到另一人使用的干拢


7. 哥哥房设计:
因为哥哥房正位于一道大樑横生之际
造成下降 40 公分的落差,为消弥视野感受的矮窄
特意利用轨道灯修樑,亦藉由一抹特殊涂料
与层次感十足的床背墙,让目光可聚焦在壁面


全屋以低敛、深木纹为底调
因为哥哥喜爱组装机械车模型
在床侧边,打造一座深度 40 公分的展示柜
不仅可摆置超大模型
也可藏入阅读书籍,让所需功能一一到位

8. 客浴设计:
因地壁均已铺设有亮面、冷灰系磁砖
延伸些许哥哥卧房的质感,形成蓝灰面的下浴柜
并砌为干湿分离,成为方便好用的浴室

9. 妹妹房设计:
在床侧有一道偌大柱体,以浅弧修润直角
再悬下一盏可自如伸缩的吊灯
使屋内显得格外柔和,并以美式线板勾勒柜面
也在进入浴室之前,筑起开放柜,可放置洗漱用品


10. 次浴设计:
同样以干湿分离划分次浴
亦因拥有对外窗,对流的空气可减缓潮湿
在粉柔色调的下浴柜点缀之下
妹妹独拥的次浴尽显柔和可爱

如果可以,请进入视频,点个关注
喜欢视频就点一下“赞
)