空间设计出品┃转载请注明来源
来源:空间设计(ID:kongjiansheji88)
宠物宅设计

每天给你分享一个案例设计
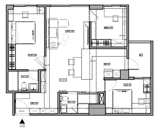
这套住宅面积:86㎡
格局:3室2厅 2卫
人数:2大 2猫
由原拾室内设计设计

1. 玄关设计:
玄关轮廓为一径长廊状,为让渡更多面积予动线
仅在右侧,砌造一座浅白交织原木色蕴的玄关柜
并以带有独特纹理的长矩形磁砖
搭衬为落尘区域
并将磁砖铺设的断点,收隐于转角壁面之内

左侧则利用干净、无造景的立面
勾勒了一道原木、铁件砌作、置放污衣的吊衣杆
除了满足每日归返时
随手放置衣物、鞋履之需求
并且释放了长廊廓型的空间感

2. 客厅设计:
客厅正好邻近厨房,为避免沙发直对烹饪区
便使墙面与厨房落置于同一平面
视线可穿梭入厨房,共享料理时光

因为主墙侧边与卧室的门紧邻
为了弱化墙面压迫感,不采用大面积木皮
同时舍去全平面电视墙的手法
先将卧室门保有白色基底,并且造为隐藏门形式
消弭了柜体感之外,更巧妙采取两个层次
前景为灰面艺术涂料、后方白底漆
并以木作工法,特别加厚约 10-12 公分
隐入些许厚度,为主墙创造立体感


3. 餐厨设计:
为了使开放式餐厨,保有视觉与功能的全然合一
装配了强大收储功能的日本式厨具
并援引浅白、浅木纹色调,盼将两域全然完美整合
再从原本一字型烹饪台
往外拉引成操作台面愈显宽阔的L型中岛
围出为完整一域



4. 主卧设计:
主卧出入口落置於沙发背墙
若是以常见的传统门穿引,将会造成墙面的断点
设计团队采取了「书柜旋转门」
将展示陈列书籍与门结合
与壁面全然相融的方式
转化了柜面的厚重柜体感

乍看相当轻盈的旋转门
必须要有仔细估量书籍的承重、回转半径的尺度等
尽可能在削减门片厚度之下,又能支撑陈列物
更因为中古屋的地板不平整
在拉齐水平线时,需要细腻、专业的功底

进入主卧,以相同的柜面处理方式
形成一大座高柜体
在窗一侧,沿着壁面筑起开放式、门式收纳柜
让居家办公、阅读都能拥有多元的储纳效能

5. 主卫浴设计:
主浴延续了公区的木质、淡灰色调
引进些许的松弛感,也使洗沐时光
保留自我对谈的me time
以干湿分离勾勒使用区域,刻意在湿区
贴覆了绿色系磁砖
让视觉有了一隅聚焦之处,并在浅柔中
由深黑色五金搭衬,使风格愈显鲜明

6. 工作室设计:
男主人的居家办公、阅读的工作室
亦是保留予猫咪们,更多嬉游的空间
除了装置猫跳台、可以恣意窝藏的太空舱
放置了猫砂盆,在几笔圆弧几何造型的跳色之下
显现软萌猫孩与文青主人相遇的有趣画面


7. 客浴设计:
因喜欢在客浴洗沐,将浴缸设置于此
侧边则紧邻淋浴区,巧引无轨道门
并以不直接顶天的方式,让玻璃门更显得俐落
予以白系、浅木、浅灰搭衬,尽显润泽之美

如果可以,请进入视频,点个关注
喜欢视频就点一下“赞”
)