空间设计出品┃转载请注明来源
来源:空间设计(ID:kongjiansheji88)
退休宅设计

每天给你分享一个案例设计
这套住宅面积:158.5㎡
格局:2室2厅 2卫
人数:2大
由一穰设计设计

1.外观设计
带入花格砖为二楼筛落片片光影
隔绝掉 50% 的西晒,更为常感炙暖的区域
创造出通风舒适的微气候
化解了原况难题之馀,亦盼为二楼书房保有一个景观窗
利用原有窗型冷气开孔,穿引了建筑师王大闳的窗洞手法
与一楼玻璃砖,正好回应了外方内圆,凝缩于天地一景

因骑楼柱体有严重的落漆状况
加上原柱面藏入许多设备管线
像是冷气排水、抽水设备等
在修整时,将南方松细切,再一根一根拼接上柱
一直延展至门面,日后以护木油擦拭保养
使外观能美好如初,儘管一、二楼以异材质搭衬
却因自然朴拙的质地,相融独特的烘托之美




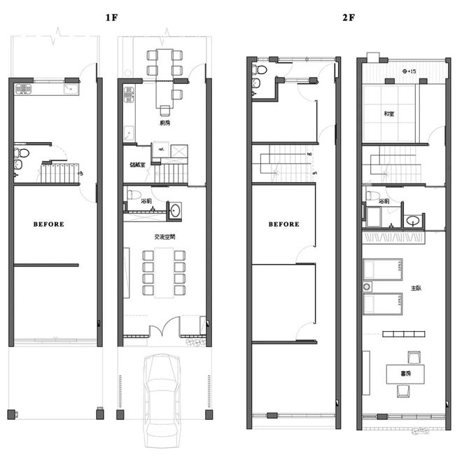
2.客厅设计
一楼公领域将作为客厅,并结合工作室
除了有玻璃砖的引光效果,为每次到访艺品课的学员
揽入一份亲近感之外,亦将原始一分为二的场域
卸除牆体,改为全然通透的交流空间

客厅地板采用松色系的木地板
天花板为了维持原楼高,穿引了天际线灯
并尽可能裸现壁面,不造作过多柜体
仅以层架展示艺品,并保有可放置大长桌的馀裕感


3. 一楼 餐厨设计:
将一楼楼梯旁的浴室改为储藏间
并将烹饪台转了 90 度方向
可以与往后院延伸的大餐桌
形如平行样态,推升出餐、用餐的顺畅感


4. 一楼 客浴设计:
考量客浴将作为工作室学员的使用浴厕
加上居住空间的隐私性顾虑
便将客浴往前置、洗手台往外置
更延续了一楼外观质感,引入清新的木纹砖
使裡外木质调,造为公区的静谧一隅

5. 二楼 主卧设计:
在原屋型中,二楼的楼梯前侧
有一道牆体将空间划分为二
浴室则是落置在最后侧
造成使用动线实为不方便
设计团队将浴室推移至楼梯前方
并且运用两道拉门
一扇是与相当静谧的和室相邻的门片
一扇是与主卧相邻的推拉门

巧用弹性隔间拉门的手法
让主卧变成一间大套房
亦在有访客留宿和室时,便于共用卫浴区
大幅转化了长型屋
常常陷于冗长又没有效率的坪效利用
6. 二楼 书房设计:
设计总监说道:因为乌日是亲近土地之境
我希望透过西班牙 100% 天然红土烧製的红砖片
带入与天地气息涵容的微妙感受

一层花格砖、一层红砖牆,不仅柔化了远方即景
更回应了后院的红砖质材,保有原屋的生命质地
在临窗一侧,打造一处书房区

让喜爱羊毛毡创作的女主人
在长年投身华德福的全人教育之下
以身心灵的滋养,持续流动入退休日常
书房一隅,彷若观照自身之地
安住身、也安住心


如果可以,请进入视频,点个关注
喜欢视频就点一下“赞”
)