89平小户型装修,北欧风格调满满,温馨得让人羡慕!
入户的玄关走廊不是很大,所以鞋柜做了嵌入式的设计,走过玄关之后的餐厅空间用彩色的置物架和斗柜来辅助收纳,更为实用。
今天小编分享的是一套建筑面积89平米的北欧风小户型案例,房子位于深圳,除了两个卧室之外,也还单独隔出了一个书房空间,整个房子的色调变化跳跃,但又不会让人感觉繁杂,再搭配好看又实用的收纳设计,让人羡慕不已。

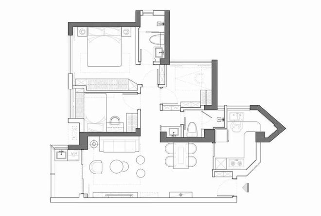
平面布置图


餐厅的两侧用延伸到横梁上的木饰面板来作为装饰,让整个空间显得更为有序。原木风的餐桌椅和绿植挂画结合,显得清新而又自然。

在餐厅的另一侧就是客厅空间,顶部没有做吊顶,电视背景墙用电视柜来作为装饰,白色和黄色的茶几和电视柜相互呼应。

整个客厅的配色比较多样化,但又不会让人感觉繁杂,蓝色的布艺沙发和灰色、蓝色的窗帘相互呼应,客厅空间虽然不大,但足够精致。

厨房是个不规则的空间,设计师把橱柜沿着墙面来布置,留出更多的活动空间,白色的柜体和灰色的台面结合,让厨房看起来更加简洁。

主卧室以白色为主,搭配孔雀蓝的床品和灰色的床、窗帘,床头柜做了悬空的款式,搭配床头背景墙上的隔板,简洁而又实用。

儿童房的空间会比较小,在白色为主的设计当中,加入了浪漫、可爱的粉色,用书桌来代替床头柜,搭配隔板架,满足孩子读书、学习的需求。

书房空间不大,但设计师却在这里藏下了一张床,壁挂床和书桌的结合,再加上满墙的柜子,小户型的书房同样能非常实用。

卫生间做了彻底的干湿分离,把洗手台放在了门外,还做了嵌入式的柜子和镜柜,卫生间的内部也用玻璃隔断门来分隔淋浴区和如厕区。
本文章由齐家小编整理发布,部分作品来自互联网,无法核实真实出处,如涉及侵权,请直接联系小编删除,谢谢!
)