空间设计出品┃转载请注明来源
来源:空间设计(ID:kongjiansheji88)
简约风设计

每天给你分享一个案例设计
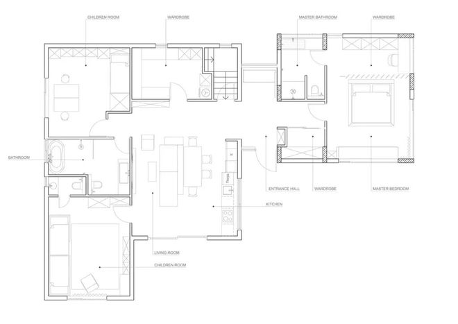
这套住宅格局:3室2厅 2卫
人数:2大1小
由Oksana Mukhina设计

1.玄关设计
以其黑白几何图案瓷砖奠定了基调
这也是"温暖网格"设计的核心所在
一条亮红色的长凳增添了一抹活力
而镜子和深色点缀则保持了空间的利落感

2.餐厨设计
开放式布局将温暖与几何线条美妙地结合在一起
橡木橱柜带来了自然的深邃感
而白色台面与黑色五金件则保持了厨房的现代感
一条柔和的灯带增添了温馨的暖光
黑色框架的窗户引入光线,如同一幅活生生的艺术品


用餐区无缝衔接
以一张造型优美的木桌和一个多球体吊灯为中心





3.客厅设计
在起居空间,柔和的灰色座椅和低饱和度的色调
营造出宁静的氛围
这与木材的温暖和细微的色彩点缀相平衡
一切流畅贯通——简约、富有质感且浑然一体


4.主卧设计
主卧室则采用了大胆的转变:沉静、温暖,且无比诱人
深酒红色的墙壁将房间包裹在茧般的宁静中
而琥珀色和淡丁香色的点缀则增添了柔和感


床后的镜面面板巧妙地扩展了空间
一个长长的芥末黄窗座带来一抹亮色
将角落变成了完美的阅读角
极简风格的吊灯和纤细的百叶帘完善了整个外观

5.儿童房设计
儿童房巧妙地利用了每一寸空间
采用洁净的桦木框架打造的嵌入式双层床
为睡眠和玩耍创造了一个舒适角落
楼梯中还隐藏着储物抽屉
深绿色的点缀带来一种宁静而又富有冒险精神的氛围



这间卧室颂扬了色彩与创意
醒目亮黄色的墙壁瞬间提升了情绪
而定制成小房子形状的置物架
则将储物变成了充满玩味的建筑元素
图案地毯增添了些许趣味
同时,天然木地板和洁净的白色家具使空间保持沉稳
让阳光般的色彩尽情闪耀而不显杂乱



6.书房设计
位于主卧套房旁的书房
延续了同样浓郁的色调
深酒红色墙壁、温暖的木材
线条利落的黑色框架
书桌安置在由深色百叶帘过滤光线的大窗旁
书架上的柔和灯光
为沉静的色调镀上了一层金边
让空间感觉私密而富有启发性


7.主浴室设计
在这间浴室里,洁白的墙面
与哑光黑色的五金件相遇
独立式浴缸和步入式淋浴间
增添了水疗中心般的惬意
而几何图案的地砖则带来了细微的纹理
这个空间证明了宁静也可以如此简约而优美



8.次卫浴设计
我们非常喜欢这间浴室的暗黑沉静氛围
炭灰色的石墙营造出茧般的包裹感
温暖的木色调和柔和的底光照明与之平衡
哑光黑色的五金件无缝地融入设计中
而圆形的灯具和镜子则柔化了空间的线条



如果可以,请进入视频,点个关注
喜欢视频就点一下“赞”
 )
)