空间设计出品┃转载请注明来源
来源:空间设计(ID:kongjiansheji88)
简约风设计

每天给你分享一个案例设计
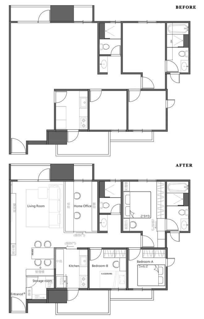
这套住宅面积:115.5㎡
格局:3室2厅 2卫
人数:1大
由颐乐空间设计设计

1. 玄关+储藏室设计:
落尘区选用奶茶灰色调
木作玄关柜台面使用仿石纹的黑色美耐板
并设有灯条,焕亮进门的仪式感

玄关具备了储藏室的机能
用于包覆及修饰入门处的大梁和柱子
储藏间门结合明镜
供屋主当作穿衣镜使用,也能提升明亮度




2. 客厅设计:
设计原则是简洁中保留一点个性
主牆带有纹理的艺术漆涂料,增加细腻度
白色部分电视牆稍微垫厚
以利线路跑过,并变更对讲机位置,方便屋主使用

主牆一旁设置灰玻展示柜
下方平台与玄关台面一样是仿石纹的美耐板
临窗处有直线空间,让整体画面产生左右对称平衡
也能避免呆板,创造立面丰富性

为保有空间的通透与开阔感
客厅和书房之间采用了半高牆搭配玻璃的隔间形式
不仅视野明亮,也串起了光线的流动


3. 餐厨设计:
考量屋主在意气味,装设横移门以杜绝油烟逸散
厨区内部拆除原有的冰箱柜与电器柜
新增一排矮柜,以及增设一个备餐台
用于料理操作、摆放小家电等

结合多元收纳形式的餐边柜
上半部为玻璃展示柜与层板
下半部预留储纳空间,并整合部分插座于此
供咖啡机、热水瓶等使用
转角处予以圆弧修饰,减少行走时碰撞的危险


4. 书房设计:
书房采用玻璃取代部分实牆作为隔间
不仅能让整体公共区域产生放大的视觉效果
也满足了屋主希望「能看见整个空间」的心理需求
避免产生被密闭或包围的感受

书房内设有长形书桌
其隔间设计在维持空间通透与开阔感的同时
也能减少外界干扰,非常适合屋主进行学术研究
阅读或线上会议使用

为隐藏全热交换器的排风管线
设计师在书房靠窗的最右侧增厚一道牆
同时在靠近窗户处刻意设计了留缝的透明玻璃造型
牵引光迹流转



5. 主卧设计:
床头牆面以奶茶灰搭配深灰呈现丰富层次感
其中浅色板材带有细緻的编织纹理
照明部分则于床头上方设有间接灯源,柔和不刺眼

入门处有一个开放柜
可放电子穿戴物品、充电手机或热水瓶、消毒锅
提供弹性使用空间,远离床区


主卧房间方正,但为避开床对到厕所门的风水问题
引入整排系统衣柜,利用横移门将厕所门错开
设计师在横移门内,利用转向 90 度的巧思
设有二次衣物柜,上方为层板
下方镂空并配有吊衣杆
方便放置毛巾、备品及换洗衣物篮等

6. 次卧设计:
次卧作为客房或父母房
是预留给未来亲友所使用
其基调设计简洁,采用白色搭配木纹
床头设有开窗,使用百叶帘并配置基础收纳


如果可以,请进入视频,点个关注
喜欢视频就点一下“赞”
)