空间设计出品┃转载请注明来源
来源:空间设计(ID:kongjiansheji88)
简约风设计

每天给你分享一个案例设计
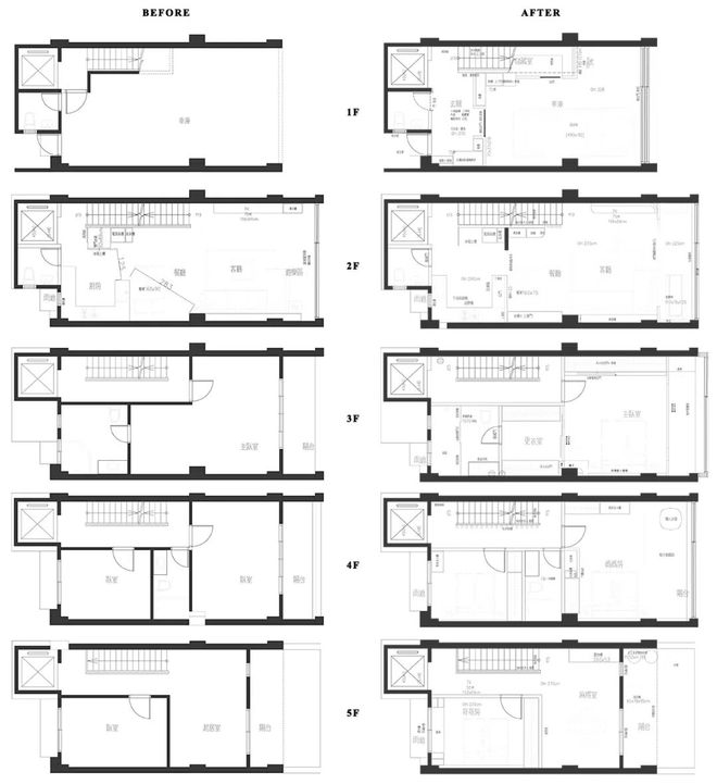
这套住宅面积:241㎡
格局:4室2厅 3卫
人数:3大1小
由安滕室内设计设计

1. 一楼玄关设计:
一楼作为车库之用,仍拓闢一地独立玄关区
让出入与储物机能,都可以在内外之际
保有恰如其分的缓衝感
在梯下畸零区,打造一间储藏室
可放置大型行李箱
并划分出内、外玄关,并将鞋履分区收纳


涂刷了一抹巧克力色交织藕色系
让韩系风格的浅柔迷人氛围
带入玄关区,为了与车库有内外的清晰转换
地板由三角图腾的六角花砖铺展
砌造一处端景浅台,可摆放展示艺品

在楼梯一侧,贴覆了一面橡木色系的洞洞板
谕示着场所的深润之美,恰好遮掩了电箱

2. 二楼 客厅设计:
经由磁砖步入木质踏阶的转变
心境上也更感沉静
为筛入光线的透润,并保有安全性
筑起了一道木作格栅,更利用短牆之距
为不足收整餐备品的餐厨区
形成一座带有展示层台的收纳柜

就在将目光放远至电视主墙时
收束了一道浅弧,让视觉感受愈显柔和
牆体以在浅粉奶茶色之上
以一道司曼特涂料为底蕴
上下各保留些微距离,形构为长方形轮廓



并与侧牆相衔的立面,援引收折的悠缓手法
亦表现在沙发背牆上,予以简约线板造型
并与上方修润大梁的弯弧,悄悄形成了唯美对称



3. 二楼 餐厅设计:
用餐区位于客厅、厨房之间
正处于过梁处,便将天花板拉高
让场域的开阔与流动感倍增
并且落下一盏餐吊灯、摆置一张四人座的陶板桌
再顺沿著厨房半高牆,打造了一式卧榻
作为座椅,亦涵纳了储物功能


4. 二楼 厨房设计:
屋主经常下厨,为避免油烟漫溢的疑虑
在深度 40 公分、高达 120 公分的中岛台之上
形构窗型门


在中岛之侧,拉一道铝框玻璃拉门。
利用门扇巧妙兜围了餐厨区
也清晰划分两域动线

5. 三楼 主卧设计:
考量衣物量较多,盼望于卧眠区
打造一间更衣室
由一道玻璃拉门为界,使卧眠区、更衣区
皆各自成为一隅方正轮廓
再延续柔弧样式,拓展为拱形门
与窗侧圆弧收边的框景互有呼应


一抹司曼特涂料为底调
与深度 12 公分的床背牆
晕染著线性灯带,浮显悠柔之美
利用后方衣橱门片,悬挂电视机
除了交融双重功能
也在窗侧,让渡一隅予梳妆台
也装设全户除湿机,完备了各种机能

6. 三楼 主浴设计:
女主人希望在白天高压工作之后
独自拥有一段 me time 时光
便将主浴重新施作
以浅系为主调,并保有一处浴缸
选入蛋型浴缸
在长型空间中,得以一展柔润


7. 四楼 父母房设计:
位于四楼的父母房
往外远眺时,拥有极佳的一片风景
为让外景的朗阔得以揽入
以 100 公分木质床背板砌造卧眠区
同时修润后方梁柱,再带入暖红色的梳妆区
刻意以一曲浅弧包覆出空间感
让卧房有了各隅的分野


8. 五楼 哥哥房设计:
同样一拥开阔景緻的哥哥房
丰沛日光可由窗侧浅渡入室
予以冷灰调的涂料为底
侧边因为挑高达 4 米
特别採取叠柜形式,拓大了收纳量能
并在黑玻一柜,内隐了暖光
让空间漫有专属个性


如果可以,请进入视频,点个关注
喜欢视频就点一下“赞”
)