空间设计出品┃转载请注明来源
来源:空间设计(ID:kongjiansheji88)
现代简约设计

每天给你分享一个案例设计
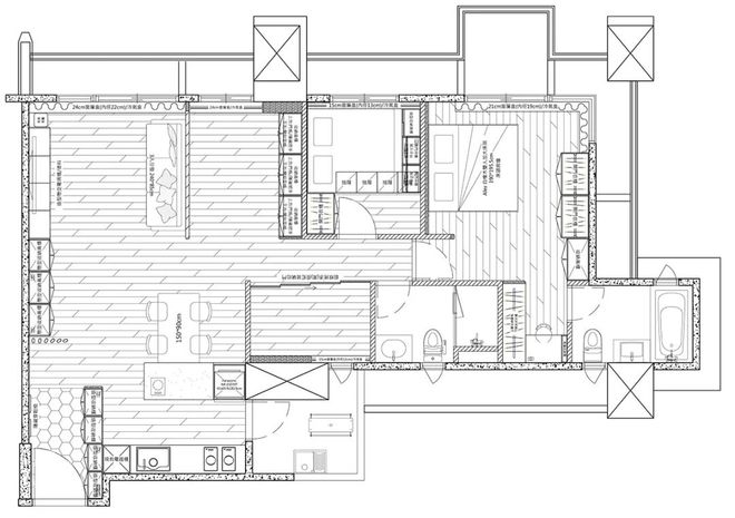
这套住宅 面积:96㎡(套内)
格局:3室3厅 2卫
人数:2大 2小
由边间室内设计设计

1. 玄关设计:
受限于一入门右侧牆,先是内缩了柜体深度
再外推一道落差约 12 公分的进退面
塑造为乍看是两段式的柜面
于转折处,再收束一曲柔弧
消融了牆体厚沉感
也满足了收储鞋履、吊挂衣物的需求

落尘区落有一道低樑横生,为消弭樑面的存在感
延揽目光聚焦至隔屏
不仅巧隐线条切割线于樑边
并砌造出一道以童趣恐龙蛋为造型的椭圆柱隔屏
予以 1: 2.2 的比例,造为与前方相衔柜体的距离

更将六支立柱形成的屏风
从正 90 度角,每一根都以旋转 15 度的微幅之差
从左至右,悄悄将筛落的光影,织构了迷人的倒影
因为旋动的倾斜角
让屏风的宽幅得以成为柜体的两倍之多
精心镌刻的比例与转幅
浮显为穿梭入主场的隐形过渡区

2. 客厅设计:
从玄关缓渡至客厅时
以一座柜体衬作过渡空间的介质
顺沿廊道为断点之后,砌为淡柔色调的主景
选以轻盈样态的沙发
与正对的浮空样式下机柜互相搭衬,迸发出自然美感

进入公领域之后,会清楚发现藉由天花板高低差
谕示著流动不同区域的边界感
一如客厅上升、餐厅下降
在不同高低差之间
清楚引领各隅将赋予生活的情境质感

3. 游戏区设计:
仅砌作一道半高牆与客厅为界
侧边与书房相邻,则藉由一道长虹玻璃
在阅读办公时,保有隐私静谧,亦能常常看顾著幼童
同时考量因应孩子阶段性成长
便于未来变更为书房
将尺幅定调在可摆放一张单人床、一张书桌的大小

后侧量体砌以木质柜面,丰润的木调触感
给予小孩练习收纳、游玩时
都深感温润之美
上柜採以圆弧收折、下柜造以开放式格柜
并且利用半高牆一侧,贴覆为磁吸白板牆面
创造了嬉游、学习的多样性

4. 餐厨设计:
从远方一探,由系统柜、人造石筑起的中岛
与侧边冰箱柜正好连绵成 L 型
厨柜予以浅灰色调、中岛则是援引浅白底蕴
巧引色彩在幽微的变幻之间,谕示区域的分野
除了带入了实用机能,亦以写意之笔
使全室有了流动的韵律美感

5. 主卧设计:
为了避免一入门即见床
将床位置对调与入门口同向,并砌造一道短牆
延伸了玄关屏风的造型
以内凹元素围塑一地舒心卧眠
在宽度达 290 公分的床背牆
选用了深木色床背板,与浅色壁面形成烘托


主卧衣橱刻意覆上一抹墨绿色
让色彩底蕴浮显,跳色手法带入了延伸感
形成了 1:1 的平衡廓型,不仅遮掩了入门视线
也在在显现设计团队擅于透过细微的修润
勾勒出极大张力


6. 小孩房设计:
打造了双人加大的床铺尺度
后侧是一座大型衣柜,与下方抽屉柜面
一同构筑收纳量能的最大化
床背牆有一小段是卧榻的木质延伸
更引入了云朵造型的防撞软垫,推升了几分童趣


如果可以,请进入视频,点个关注
喜欢视频就点一下“赞”
)